UDZ-5頂裝磁翻板液位計

- AK-SX7083流量積算儀
- ◆ 本儀表適合于蒸汽和一般氣體的測量,可用于內部計量和貿易計量。 ◆ 本儀表符合新版流量積算儀檢定規程《JJG1003-2016》 ◆ 本安裝使用手冊是以具備一定的流量計經驗知識為對象編寫的,使

- 數顯壓力表
- AK-SXYLB數字壓力表為全電子結構。前端采用高精度壓阻式壓力傳感器,輸出信號由高精度,低溫漂的放大器放大處理,送入高精度的A/D轉換器,轉換成微處理器可以處理的數字信號,經過運算處理,

- 乙酸乙酯液位計
- 乙酸乙酯液位計是公司引進吸收國外同類產品,并加以提高的產品。系列產品可以做到高密封、防泄漏和在高溫、高壓、高粘度、強腐蝕性條件下可靠地測量液位,全過程測量無盲區


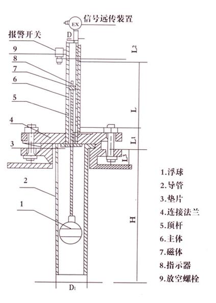
UDZ-5頂裝式磁翻板液位計是應需集中控制而開發的另一種頂裝(底裝)型產品,具有現場指示清晰又能遠傳控制等優點.該產品能廣泛應用于石油化工、化肥、醫藥、船舶、軍事等行業中的各種塔、罐、槽及球形容器上的液位指示。頂裝式磁翻板液位計由本體(由上、下導管組成)、翻板箱(由紅、白雙色磁性小翻板組成)、浮子(由磁體、頂桿、浮筒組成)以及液位變送器等組成,其結構如圖所示。工作原理為:容器內的浮筒(按不同介質和壓力針對),在下導管中隨液面高度的變化而上下浮動并通過頂桿使磁體在上導管內上下移動,促使本體外的翻板翻動并用紅、白顏色來指示液面高度,同時液位變送器將液位信號傳送至控制中心進行液位指示和控制,也可通過計算機進行集中監控。
1、 在容器不適宜側面開孔及容器周圍空間很少時,可在容器上部或下部安裝本形式液位計。
2、 適用于粘度較大的液體介質。
頂裝磁翻板技術要求
1.測量范圍:0~5000mm
2.準確度: ±10mm ±16mm
3.翻柱直徑:10mm,16mm
4.公稱壓力:2.5MPa
5.介質密度:≥0.7g/cm3(特殊要求可達0.45g/cm3)
6.介質溫度:-20~+350℃
7.接液材質:不銹鋼304/316/316L及PP材質
8.介質粘度:≤2.0Pa.s
9.環境振動:頻率≤25Hz振幅≤0.5mm
10法蘭標準:HG20592~20635-97
|
安裝使用和維護:
首先拆下導管下端的浮球托桿,將浮球連接頂端的磁阻件拆下,然后將浮球同連接桿一起裝入導管內,再講磁阻件裝上,導管下端的托桿也裝好并固定,二人托起導管垂直插入設備內(注意加放密封墊)再在導管法蘭上放上密封墊后,將主體管翻板箱體組件垂直放上,安裝時一人看好磁阻件連接桿不能碰彎(連接桿玩彎曲將引起液位計呆滯甚至不能正常使用)使密封墊和導管法蘭進入主體管下端法蘭的凹面內,均勻擰緊法蘭螺釘,這樣液位計即可投入使用(翻板指示器下部的不動部分為測量死區。
相關資訊
聯系奧科
固話:0517-86919886
傳真:0517-86919886
手機:15261725556
地址:江蘇金湖縣工業園區工一路



